Gardenline 3
Kui sulle on senini tundunud, et aiamaja kokkupanek on keeruline, aeganõudev ja kulukas, siis elementmaja tõestab vastupidist.
Elementidest koosnev maja on lihtsasti kokkupandav, see ei nõua lisaoskusi ning kõigele lisaks on sul võimalus veeta mõned tunnid parima sõbraga värskes õhus.
Pentuse tootesari äratab sinus loomingulisuse. Tänu ühesuurustele elementidele on sul võimalus paigutada nii uks kui ka aken endale sobivasse suunda. Seeläbi naudid päikeseloojangut ja vaadet rohelusse.
Toote juurde kuulub lisaks:
- põrand
- tõrvapapp (katuse esmaseks katteks)
- paigaldustarvikud
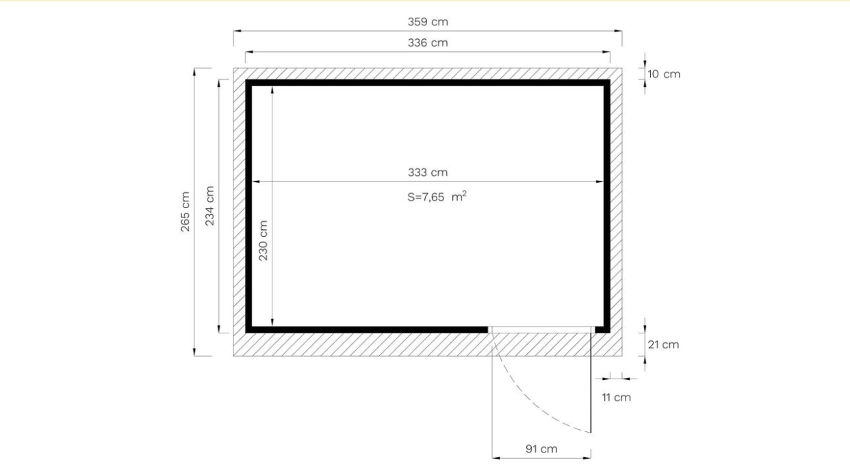
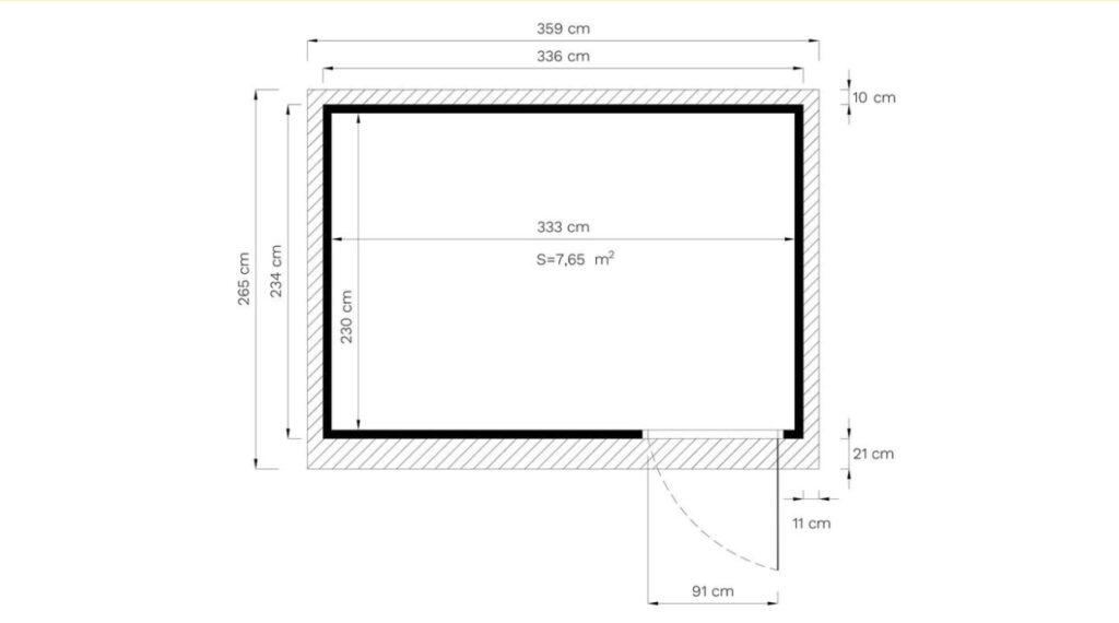
| Info | Mõõdud |
|---|---|
| Seinamõõdud | 337 x 234 cm |
| Põranda pindala | 7.65 m2 |
| Seina kõrgus (max) | 232 cm |
| Seina kõrgus (min) | 222 cm |
| Ruumala | 16.8 m3 |
| Seina paksus | 19 mm |
| Seina pindala | 26 m2 |
| Katuse paksus | 19 mm |
| Katuse pindala | 9.4 m2 |
| Katuse kalle | 2.2 ° |
| Lumekoormus | 1.6 kN/m2 |
| Ukseava | 91 x 186 cm |
