Owl House
🏡 Owl House – Kompaktne ja Kvaliteetne Minimaja
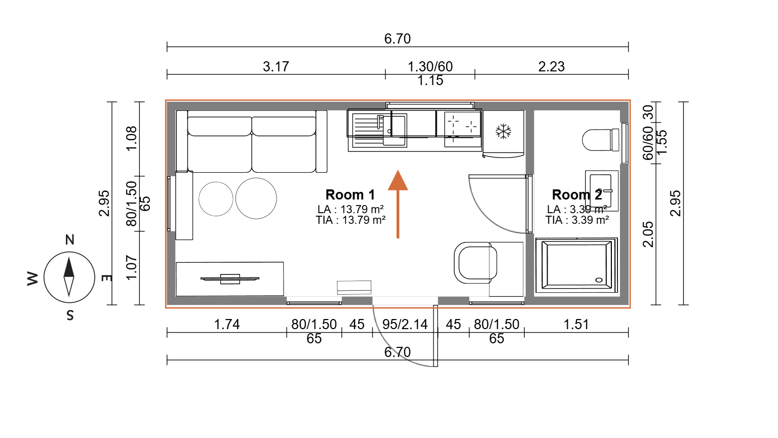
Owl House on kaasaegne ja kvaliteetne minimaja, mis on loodud pakkuma hubast ning mugavat elukeskkonda. Selle kompaktsed mõõdud (6.7 x 2.95 m, kokku 19.8 m²) teevad sellest ideaalse valiku nii suvekoduks, külalistemajaks kui ka püsivaks elukohaks. ✨
🛠 Tugev ja vastupidav konstruktsioon
✅ 200mm LVL (Kertopuu) alusraam, mis tagab stabiilsuse ja vastupidavuse.
✅ Põrand soojustatud 200mm villaga, pakkudes suurepärast soojapidavust ka külmematel kuudel.
🏠 Efektiivne soojustus
🔹 Seinad valmistatud puitkarkassi meetodil, soojustatud 100mm villaga.
🔹 Lisatasu eest võimalik lisada 30mm PIR plaadi kiht, mis täiustab soojapidavust.
🔹 Katus soojustatud 150mm kivivillaga,
🔨 Kvaliteetne viimistlus ja vastupidav katusekate
✅ Katusekatteks kvaliteetne ja kauakestev EPDM katusekate, mis tagab pikaealisuse ja ilmastikukindluse.
✅ Välisvoodrilaudis tehases eelvärvitud,(🎨Värvi võimalik muuta) pakkudes parimat võimalikku kvaliteeti ja kauakestvat ilmet.
✅ Eluruumi siseviimistluseks kasutatud valget vahatatud voodrilauda, mis loob avara ja helge atmosfääri.
✅ Sanitaarruumis kasutatud SPC paneele, mis on vastupidavad ja niiskuskindlad.
🚿 Mugavus ja funktsionaalsus
🔸 Elektrijuhtmestik ja kilp paigaldatakse vastavalt kliendi soovidele.
🔸 Sanitaarsõlmed baashinnas:
✔️ WC-pott 🚽
✔️ Dušikabiin 🚿
✔️ Valamukapp koos segisti ja valamuga 🏺
🎨 Täiendavad võimalused
❌ Baashind ei sisalda mööblit, köögimööblit ega terrassi, andes kliendile vabaduse kujundada minimaja vastavalt isiklikele vajadustele ja eelistustele.
🔋 Lisatasu eest võimalik paigaldada akupank ja päikesepaneelid, mis annavad võimaluse kasutada taastuvenergiat! ☀️🔌
